Architecture Projects.

House in Potamiou Village, CY

A stone house with a sloped tile roof, surrounded by wildflowers and small trees, under a clear blue sky.
A digitally rendered 3D model of a two-story house with a gable roof, multiple windows, and a small porch with steps.

Year
20/08/2025

Stage
Planning Permit

House in Lania Village, CY

Photorealistic Render
Isometric Revit

Stage
Design Concept

Year
20/11/2025

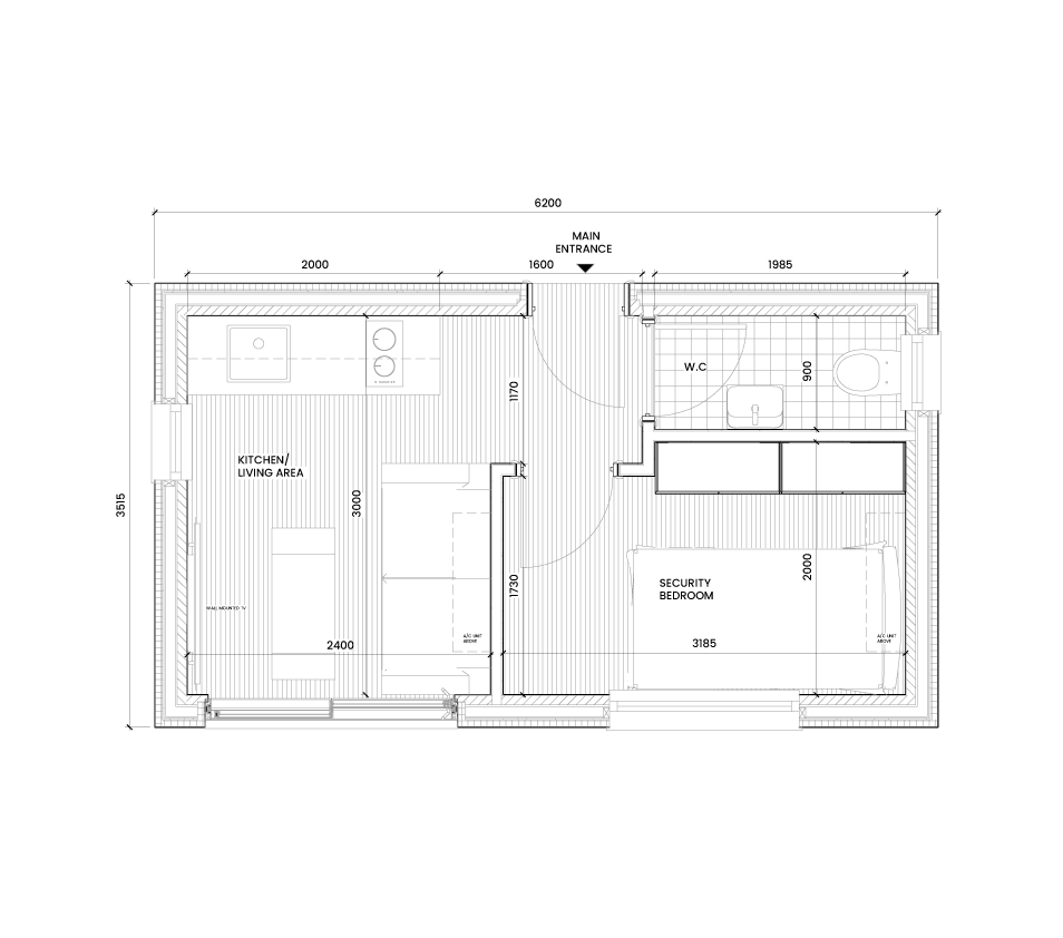
Security Cabin, Limassol, Cyprus

Floor plan of a small house with a security bedroom, kitchen/living area, bathroom, and entrance.
Floor plan of a small house with a main entrance leading into a hallway, a combined kitchen and living area, a security bedroom, and a bathroom with a toilet and sink.

Stage
Concept

Year
10/08/2024

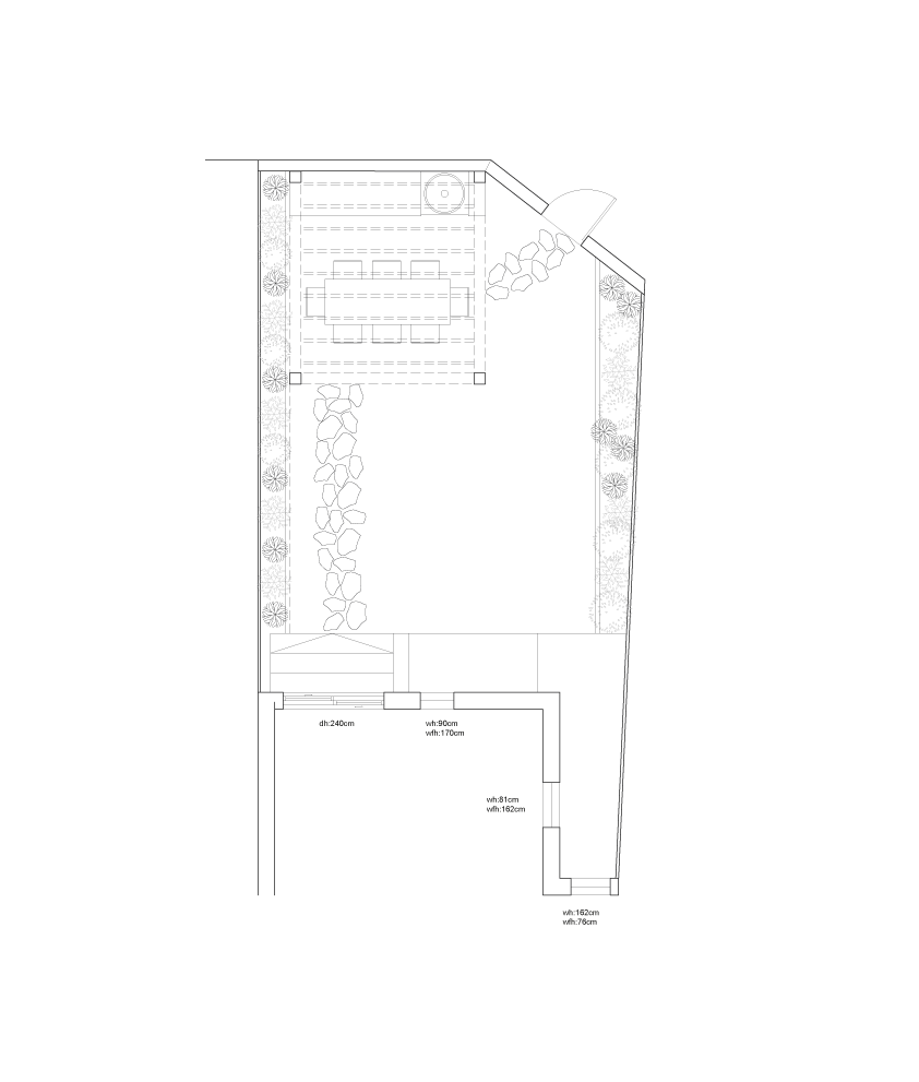
Garden Design, London, UK

A backyard garden with a stone path leading to a wooden outdoor kitchen or bar area, surrounded by flowers and greenery, illuminated by outdoor lanterns and low pathway lights at sunset.
A detailed architectural plan of a backyard garden and patio area, including a dining table with chairs, a pathway lined with rocks, and a small outdoor seating area with a door leading into a building.

Year
10/08/2024

Stage
Concept

Visualisation Projects.

Modern multi-story residential building with balconies and outdoor spaces in an urban area, with several trees and parked cars in front under a partly cloudy sky.

Armonia Residence, Nicosia, Cyprus

Visualisation package for a residential building in the city centre of Nicosia.

Modern white house with large windows, a terraced garden, and a parking lot with cars on the left, under a partly cloudy sky at sunset.

Tala Villa, Paphos, Cyprus

Visualisation package for a villa in Paphos area.

Modern two-story house with outdoor patio and lawn, car parked under carport, dog lying on grass, kids' toys, hammock, and trees in the yard.

Extraland Estates, Sotira, Cyprus

Visualisation package for a development complex in Limassol rural area.

Modern two-story house with stone and concrete exterior, large glass windows, and a balcony, surrounded by trees and a stone wall with a metal gate.

House in Pera Pedi

Visualisation package for a holiday house in Limassol rural area.